Objektart
Adresse
Objektdaten
Informationen
Details
Am Alten Kreuzweg in Borken entsteht ein moderner Geschosswohnungsbau mit insgesamt 8 attraktiven Wohneinheiten. Das Haus wird in massiver Bauweise nach den aktuellen Anforderungen des Gebäudeenergiegesetzes (GEG) errichtet und überzeugt durch hochwertige Ausstattung, energieeffiziente Technik sowie eine zeitgemäße Architektur mit Klinkerfassade und Satteldach.
Der Neubau erfüllt den KfW-40-Standard (Klimafreundlicher Neubau) und ist förderfähig über verschiedene Programme der KfW- und NRW BANK, darunter das NRW-Förderdarlehen "Nachhaltiges Wohnen".
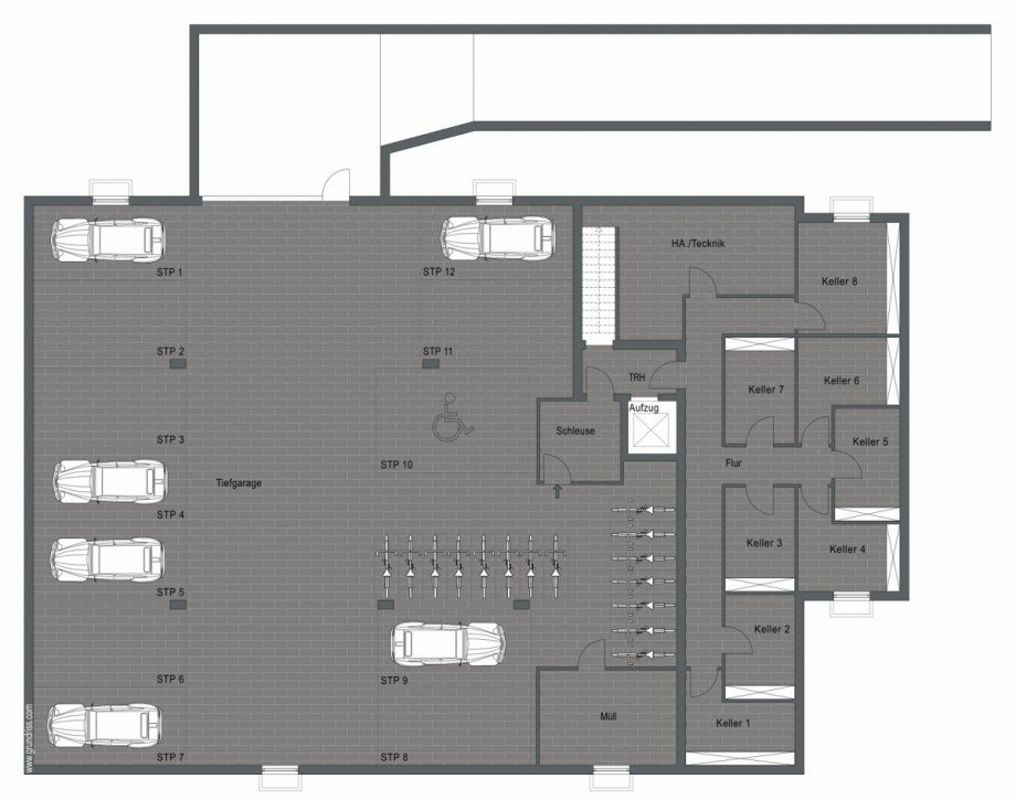
Die Wohnungen sind über ein großzügiges Treppenhaus und einen Personenaufzug erschlossen. Alle Wohneinheiten verfügen über Balkone oder Terrassen. Im Kellergeschoss befinden sich Abstellräume, fest zugeordnete Tiefgaragenstellplätze (zzgl. 20.000 EUR je Wohnung) sowie Technik- und Funktionsräume.
Wohnungsdetails - Obergeschosswohnung 4
o 3-Zimmer-Wohnung im Obergeschoss
o Großzügiger Wohn- und Essbereich mit direktem Zugang zum Balkon
o 2 Schlafzimmer
o Bad mit moderner Ausstattung und bodengleicher Dusche
o Zusätzliches Gäste-WC
o Separater Hauswirtschaftsraum (HWR)
o Balkon
Ausstattung (Auszug)
o Massive Bauweise: Kalksandstein-Plansteine, Verblendfassade aus Klinker
o Wärmeschutz & Energieeffizienz: 3-fach verglaste Kunststofffenster, Luft-Wasser-Wärmepumpe, Fußbodenheizung mit Einzelraumregelung
o Schallschutz: erhöhte Anforderungen gemäß VDI 4100 (Schallschutzstufe II)
o Bodenbeläge: Wohnbereiche mit keramischen Fliesen, Schlafzimmer mit Designboden (Auswahl möglich)
o Sanitärausstattung: moderne Badausstattung von Markenherstellern, bodengleiche Dusche (120 x 120 cm), Handtuchheizkörper
o Elektro: umfangreiche Ausstattung, Netzwerkdosen, TV-Anschluss, elektrische Rollläden
o Außenbereiche: Balkone und Terrassen mit Feinsteinzeugfliesen, Geländer aus pulverbeschichtetem Stahl
o Aufzug: barrierearme Erschließung aller Etagen
o Keller/Tiefgarage: Abstellräume je Wohnung, Müllraum, Stellplätze
Gemeinschafts- und Außenanlagen
o Ansprechend gestaltetes Treppenhaus mit hochwertigen Fliesen und Wandgestaltung
o Außenanlagen nach Freiflächengestaltungsplan mit Wegen, Stellplätzen und Grünflächen
o Müllraum in der Tiefgarage
o Fahrradabstellmöglichkeiten
Wohnungsangebot
o 3 Wohnungen im Erdgeschoss mit Terrasse und Gartenanteil
o 3 Wohnungen im Obergeschoss mit Balkonen
o 2 Wohnungen im Dachgeschoss mit Balkonen
Die Immobilie befindet sich in attraktiver und gefragter Wohnlage von Borken. Das Umfeld zeichnet sich durch eine ruhige, gewachsene Struktur aus und bietet gleichzeitig eine hervorragende Anbindung an die Innenstadt.
o Einkaufsmöglichkeiten für den täglichen Bedarf, Supermärkte sowie Fachgeschäfte sind in wenigen Minuten erreichbar.
o Schulen, Kindergärten und weitere Betreuungseinrichtungen befinden sich in unmittelbarer Nähe und machen die Lage besonders familienfreundlich.
o Freizeit- und Erholungsangebote wie Sportvereine, Grünanlagen und Radwege sind schnell zugänglich und bieten eine hohe Lebensqualität.
o Eine gute Verkehrsanbindung - sowohl in Richtung Innenstadt als auch zu den umliegenden Städten - rundet die ausgezeichnete Lage ab.
Bei den dargestellten Grundrissen handelt es sich um einen ersten Entwurf. Etwaige Änderungen vorbehalten.
Gemäß EnEV § 16 wird der Energieausweis unverzüglich nach Fertigstellung des Gebäudes ausgestellt und übergeben.
Ansprechpartner
Telefax: 0049028618114409
Mobil: 00491605855088
lanfer@melis-immobilien.de
Ich bin damit einverstanden, dass mir Karten von Google angezeigt werden. Es gelten die Datenschutzbedingungen von Google (https://policies.google.com/privacy).
Ich bin einverstanden